We present a vision for the future.
피팅 사업부
플랜지 사업부
파이프 사업부
열교환기 사업부
Copper Fitting
생산설비
Elbow
Tee
Reducer
Miscellaneous Copper Fittings
JIS H3300 C1220T-1/2H
| 파이프 외경 | d | A | R | L | t | 중량 | ||||||||||||||||||||||||
|---|---|---|---|---|---|---|---|---|---|---|---|---|---|---|---|---|---|---|---|---|---|---|---|---|---|---|---|---|---|---|
| 90D | 45D | 90D | 45D | 90D | 45D | 90D | 45D | |||||||||||||||||||||||
| Nominal | Actual | ± | 0.2 | ±1.0 | ±1.0 | ±1.0 | ±1.0 | ±1.0 | ±1.0 | -0 | ||||||||||||||||||||
| 0 | ||||||||||||||||||||||||||||||
| (ND) | (mm) | (mm) | (mm) | (mm) | (mm) | (mm) | (mm) | (mm) | (mm) | (Kg) | ||||||||||||||||||||
| 10 | 15 | 15.1 | 20 | 8.3 | 20 | 20 | 32 | 23.3 | 1.4 | 0.04 | 0.03 | |||||||||||||||||||
| 15 | 20 | 20.2 | 8.3 | 35 | 23.3 | 1.6 | 0.06 | 0.04 | ||||||||||||||||||||||
| 20 | 25 | 25.2 | 25 | 10.4 | 25 | 40 | 25.4 | 0.09 | 0.06 | |||||||||||||||||||||
| 25 | 30 | 30.3 | 10.4 | 25 | 40 | 25.4 | 0.14 | 0.10 | ||||||||||||||||||||||
| 32 | 35 | 35.3 | 32 | 13.3 | 32 | 32 | 50 | 31.3 | 0.20 | 0.14 | ||||||||||||||||||||
| 40 | 45 | 45.3 | 40 | 16.6 | 40 | 40 | 60 | 36.6 | 2.0 | 0.35 | 0.19 | |||||||||||||||||||
| 50 | 55 | 55.4 | 50 | 20.7 | 50 | 50 | 75 | 45.7 | 0.60 | 0.42 | ||||||||||||||||||||
| 65 | 70 | 70.4 | 65 | 26.9 | 65 | 65 | 95 | 59.6 | 1.12 | 0.78 | ||||||||||||||||||||
| 80 | 85 | 85.4 | 80 | 31.1 | 80 | 80 | 110 | 61.6 | 2.5 | 1.60 | 1.12 | |||||||||||||||||||
| 100 | 110 | 110.5 | 100 | 41.1 | 100 | 100 | 135 | 76.4 | 3.0 | 2.80 | 2.00 | |||||||||||||||||||
| 125 | 140 | 140.6 | 125 | 51.5 | 125 | 125 | 165 | 91.5 | 3.90 | 2.90 | ||||||||||||||||||||
JIS H3300 C1220T-1/2H
| 파이프 외경 | d | d1 | L | L1 | A | A1 | t | t1 | 중량 | |||||||||||||||||||||||||||||||
|---|---|---|---|---|---|---|---|---|---|---|---|---|---|---|---|---|---|---|---|---|---|---|---|---|---|---|---|---|---|---|---|---|---|---|---|---|---|---|---|---|
| 명목 | 실제 | ± | 0.2 | ± | 0.2 | ±1.0 | ±1.0 | ±1.0 | ±1.0 | -0 | -0 | (Kg) | ||||||||||||||||||||||||||||
| 0 | 0 | |||||||||||||||||||||||||||||||||||||||
| (ND) | (mm) | (mm) | (mm) | (mm) | (mm) | (mm) | (mm) | (mm) | (mm) | |||||||||||||||||||||||||||||||
| 6 | 10 | x |
10 |
10.1 | 10.1 | 15 | 15 | 7.5 | 7.5 | 1.0 | 1.0 | 0.05 | ||||||||||||||||||||||||||||
| 10 | 15 | x |
15 |
15.1 | 15.1 | 27 | 27 | 15 | 15 | 1.4 | 1.4 | 0.07 | ||||||||||||||||||||||||||||
| 10 x 6 | 10 |
10.1 |
31 | 21 | 1.0 | 0.06 | ||||||||||||||||||||||||||||||||||
| 15 | 20 | x |
20 |
20.2 | 20.2 | 29 | 29 | 15 | 15 | 1.6 | 1.6 | 0.10 | ||||||||||||||||||||||||||||
| 15 x 10 | 15 |
15.1 |
32 | 20 | 1.4 | 0.08 | ||||||||||||||||||||||||||||||||||
| 15 x 6 | 10 |
10.1 |
32 | 22 | 1.0 | 0.07 | ||||||||||||||||||||||||||||||||||
| 20 | 25 | x |
25 |
25.2 | 25.2 | 32 | 32 | 17 | 17 | 1.6 | 0.16 | |||||||||||||||||||||||||||||
| 20 x 15 | 20 |
20.2 |
34 | 20 | 0.14 | |||||||||||||||||||||||||||||||||||
| 20 x 10 | 15 |
15.1 |
36 | 24 | 1.4 | 0.12 | ||||||||||||||||||||||||||||||||||
| 25 | 30 | x |
30 |
30.3 | 30.3 | 36 | 36 | 20 | 20 | 1.6 | 0.25 | |||||||||||||||||||||||||||||
| 25 x 20 | 25 |
25.2 |
40 | 25 | 0.23 | |||||||||||||||||||||||||||||||||||
| 25 x 15 | 20 |
20.2 |
42 | 28 | 0.21 | |||||||||||||||||||||||||||||||||||
| 25 x 10 | 15 |
15.1 |
44 | 32 | 1.4 | 0.18 | ||||||||||||||||||||||||||||||||||
| 32 | 35 | x |
35 |
35.3 | 35.3 | 42 | 42 | 24 | 24 | 1.6 | 0.32 | |||||||||||||||||||||||||||||
| 32 x 25 | 30 |
30.3 |
47 | 31 | 0.29 | |||||||||||||||||||||||||||||||||||
| 32 x 20 | 25 |
25.2 |
50 | 35 | 0.27 | |||||||||||||||||||||||||||||||||||
| 32 x 15 | 20 |
20.2 |
52 | 38 | 0.25 | |||||||||||||||||||||||||||||||||||
| 40 | 45 | x |
45 |
45.3 | 45.3 | 50 | 50 | 30 | 30 | 2.0 | 2.0 | 0.46 | ||||||||||||||||||||||||||||
| 40 x 32 | 35 |
35.3 |
56 | 38 | 1.6 | 0.42 | ||||||||||||||||||||||||||||||||||
| 40 x 25 | 30 |
30.3 |
56 | 42 | 0.40 | |||||||||||||||||||||||||||||||||||
| 40 x 20 | 25 |
25.2 |
58 | 43 | 0.37 | |||||||||||||||||||||||||||||||||||
| 50 | 55 | x |
55 |
55.4 | 55.4 | 57 | 57 | 35 | 35 | 2.0 | 2.0 | 0.66 | ||||||||||||||||||||||||||||
| 50 x 40 | 45 |
45.3 |
65 | 45 | 0.61 | |||||||||||||||||||||||||||||||||||
| 50 x 32 | 35 |
35.3 |
68 | 50 | 1.6 | 0.58 | ||||||||||||||||||||||||||||||||||
| 50 x 25 | 30 |
30.3 |
70 | 54 | 0.56 | |||||||||||||||||||||||||||||||||||
|
70 | x |
70 |
70.4 |
|
69 |
|
43 | 43 | 2.0 | 2.0 | 1.16 | ||||||||||||||||||||||||||||
| 65 x 50 | 55 |
55.4 |
80 | 58 | 0.99 | |||||||||||||||||||||||||||||||||||
| 65 x 40 | 45 |
45.3 |
84 | 64 | 0.97 | |||||||||||||||||||||||||||||||||||
| 65 x 32 | 35 |
35.3 |
90 | 74 | 1.6 | 0.95 | ||||||||||||||||||||||||||||||||||
| 80 | 85 | x |
85 |
85.4 | 85.4 | 81 | 81 | 51 | 51 | 2.5 | 2.5 | 1.86 | ||||||||||||||||||||||||||||
| 80 x 65 | 70 |
75.4 |
90 | 64 | 2.0 | 1.63 | ||||||||||||||||||||||||||||||||||
| 80 x 50 | 55 |
55.4 |
95 | 73 | 1.51 | |||||||||||||||||||||||||||||||||||
| 80 x 40 | 45 |
45.3 |
100 | 86 | 1.47 | |||||||||||||||||||||||||||||||||||
| 100 | 110 | x |
110 |
110.5 | 110.5 | 100 | 100 | 66 | 66 | 3.0 | 3.0 | 2.86 | ||||||||||||||||||||||||||||
| 100 x 80 | 85 |
85.4 |
122 | 92 | 2.5 | 2.49 | ||||||||||||||||||||||||||||||||||
| 100 x 65 | 70 |
70.4 |
126 | 100 | 2.0 | 2.31 | ||||||||||||||||||||||||||||||||||
| 100 x 50 | 55 |
55.4 |
132 | 112 | 2.24 | |||||||||||||||||||||||||||||||||||
| 125 | 140 | x |
140 |
140.6 | 140.6 | 125 | 125 | 85 | 85 | 3.0 | 4.20 | |||||||||||||||||||||||||||||
| 125 x 100 | 110 |
110.5 |
135 | 100 | 4.30 | |||||||||||||||||||||||||||||||||||
| 125 x 80 | 85 |
85.4 |
143 | 113 | 2.5 | 4.20 | ||||||||||||||||||||||||||||||||||
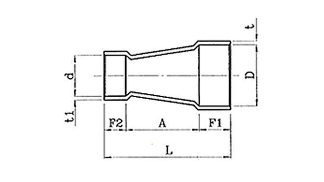
JIS H3300 C1220T-1/2H
| 파이프 외경 | D | d | L | A | F1 | F2 | t | t1 | 중량 | ||||||||||||||||||||||
|---|---|---|---|---|---|---|---|---|---|---|---|---|---|---|---|---|---|---|---|---|---|---|---|---|---|---|---|---|---|---|---|
| 명목 | 실제 | ± | 0.2 | ± | 0.2 | ±1.0 | ±1.0 | ±1.0 | ±1.0 | -0 | -0 | (Kg) | |||||||||||||||||||
| 0 | 0 | ||||||||||||||||||||||||||||||
| (ND) | (mm) | (mm) | (mm) | (mm) | (mm) | (mm) | (mm) | (mm) | (mm) | ||||||||||||||||||||||
| 10 x 6 | 15 | 10 | 15.1 | 10.1 | 29 | 7 | 12 | 10 | 1.4 | 1.0 | 0.02 | ||||||||||||||||||||
| 15 x 10 | 20 | 15 | 20.2 | 15.1 | 35 | 9 | 14 | 12 | 1.6 | 1.4 | 0.04 | ||||||||||||||||||||
| 15 x 6 | 10 | 10.1 | 35 | 11 | 14 | 10 | 1.0 | 0.03 | |||||||||||||||||||||||
| 20 x 15 | 25 | 20 | 25.2 | 20.2 | 35 | 6 | 15 | 14 | 1.6 | 0.08 | |||||||||||||||||||||
| 20 x 10 | 15 | 15.1 | 36 | 9 | 15 | 12 | 1.4 | 0.06 | |||||||||||||||||||||||
| 20 x 6 | 10 | 10.1 | 38 | 14 | 15 | 10 | 1.0 | 0.05 | |||||||||||||||||||||||
| 25 x 20 | 30 | 25 | 30.3 | 25.2 | 43 | 12 | 16 | 15 | 1.6 | 0.12 | |||||||||||||||||||||
| 25 x 15 | 20 | 20.2 | 47 | 17 | 16 | 14 | 0.10 | ||||||||||||||||||||||||
| 25 x 10 | 15 | 15.1 | 50 | 22 | 16 | 12 | 1.4 | 0.09 | |||||||||||||||||||||||
| 32 x 25 | 35 | 30 | 35.3 | 30.3 | 44 | 10 | 18 | 16 | 1.6 | 0.17 | |||||||||||||||||||||
| 32 x 20 | 25 | 25.2 | 51 | 18 | 18 | 15 | 0.15 | ||||||||||||||||||||||||
| 32 x 15 | 20 | 20.2 | 51 | 19 | 18 | 14 | 0.17 | ||||||||||||||||||||||||
| 40 x 32 | 45 | 35 | 45.3 | 35.3 | 50 | 12 | 20 | 18 | 2.0 | 0.20 | |||||||||||||||||||||
| 40 x 25 | 30 | 30.3 | 62 | 26 | 20 | 16 | 0.22 | ||||||||||||||||||||||||
| 40 x 15 | 20 | 20.2 | 72 | 38 | 20 | 14 | 0.18 | ||||||||||||||||||||||||
| 50 x 40 | 55 | 45 | 55.4 | 45.3 | 60 | 18 | 22 | 20 | 2.0 | 0.31 | |||||||||||||||||||||
| 50 x 32 | 35 | 35.3 | 77 | 37 | 22 | 18 | 1.6 | 0.25 | |||||||||||||||||||||||
| 50 x 25 | 30 | 30.3 | 75 | 39 | 22 | 16 | 0.23 | ||||||||||||||||||||||||
| 65 x 50 | 70 | 55 | 70.4 | 55.4 | 74 | 26 | 26 | 22 | 2.0 | 0.58 | |||||||||||||||||||||
| 65 x 40 | 45 | 45.3 | 90 | 44 | 26 | 20 | 0.63 | ||||||||||||||||||||||||
| 65 x 32 | 35 | 35.3 | 75 | 34 | 26 | 18 | 1.6 | 0.50 | |||||||||||||||||||||||
| 80 x 65 | 85 | 70 | 85.4 | 75.4 | 82 | 26 | 30 | 26 | 2.5 | 2.0 | 0.90 | ||||||||||||||||||||
| 80 x 50 | 55 | 55.4 | 99 | 47 | 30 | 22 | 0.80 | ||||||||||||||||||||||||
| 80 x 40 | 45 | 45.3 | 99 | 49 | 30 | 20 | 0.75 | ||||||||||||||||||||||||
| 100 x 80 | 110 | 85 | 110.5 | 85.4 | 107 | 45 | 34 | 30 | 3.0 | 2.5 | 1.34 | ||||||||||||||||||||
| 100 x 65 | 70 | 70.4 | 129 | 69 | 34 | 26 | 2.0 | 1.50 | |||||||||||||||||||||||
| 100 x 50 | 55 | 55.4 | 126 | 70 | 34 | 22 | 1.35 | ||||||||||||||||||||||||
| 125 x 100 | 140 | 110 | 140.6 | 110.5 | 109 | 35 | 40 | 34 | 3.0 | 2.10 | |||||||||||||||||||||
| 125 x 80 | 85 | 85.4 | 148 | 78 | 40 | 30 | 2.5 | 2.20 | |||||||||||||||||||||||
JIS H3300 C1220T-1/2H
| 파이프 외경 | d | A | L | t | 중량 | ||||||||||||||||||||||
|---|---|---|---|---|---|---|---|---|---|---|---|---|---|---|---|---|---|---|---|---|---|---|---|---|---|---|---|
| 명목 | 실제 | ± | 0.2 | ±1.0 | ±1.0 | ±1.0 | (Kg) | ||||||||||||||||||||
| 0 | |||||||||||||||||||||||||||
| (ND) | (mm) | (mm) | (mm) | (mm) | (mm) | ||||||||||||||||||||||
| 10 | 15 | 15.1 | 6 | 36 | 1.4 | 0.03 | |||||||||||||||||||||
| 15 | 20 | 20.2 | 7 | 42 | 1.6 | 0.05 | |||||||||||||||||||||
| 20 | 25 | 25.2 | 8 | 46 | 0.07 | ||||||||||||||||||||||
| 25 | 30 | 30.3 | 8 | 48 | 0.11 | ||||||||||||||||||||||
| 32 | 35 | 35.3 | 9 | 54 | 0.15 | ||||||||||||||||||||||
| 40 | 45 | 45.3 | 10 | 60 | 2.0 | 0.26 | |||||||||||||||||||||
| 50 | 55 | 55.4 | 11 | 66 | 0.33 | ||||||||||||||||||||||
| 65 | 70 | 70.4 | 13 | 78 | 0.60 | ||||||||||||||||||||||
| 80 | 85 | 85.4 | 15 | 90 | 2.5 | 0.72 | |||||||||||||||||||||
| 100 | 110 | 110.5 | 17 | 102 | 3.0 | 1.10 | |||||||||||||||||||||
| 125 | 140 | 140.6 | 20 | 120 | 1.40 | ||||||||||||||||||||||
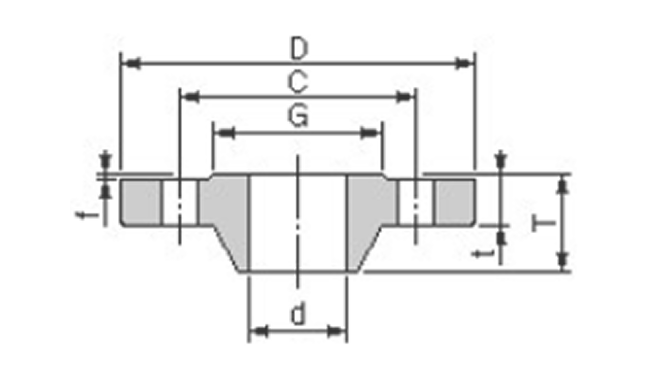
Copper Flange
생산설비
Composite type
Solid type
Internal : JIS H5120 CAC202
External : JIS G3101 SS400
JIS F7804
| 파이프 외경 | 내부 플랜지 | 외부 플랜지 | 스토퍼 | 볼트 홀 | |||||||||||||||||||||||||||||
|---|---|---|---|---|---|---|---|---|---|---|---|---|---|---|---|---|---|---|---|---|---|---|---|---|---|---|---|---|---|---|---|---|---|
| 명목 | 실제 | d0 | D2 | D4 | T | T1 | D | D1 | D3 | t | t1 | d1 | m | C | N | H | |||||||||||||||||
| (ND) | (mm) | (mm) | (mm) | (mm) | (mm) | (mm) | (mm) | (mm) | (mm) | (mm) | (mm) | (mm) | (mm) | (mm) | (mm) | ||||||||||||||||||
| 50 | 55 | 55.4 | 84 | 64 | 20 | 7 | 130 | 86 | 66 | 14 | 8 | 51 | 3 | 105 | 4 | 15 | |||||||||||||||||
| 65 | 70 | 70.4 | 109 | 77 | 155 | 111 | 79 | 66 | 4 | 130 | |||||||||||||||||||||||
| 80 | 85 | 80.4 | 120 | 92 | 8 | 180 | 122 | 94 | 16 | 10 | 80 | 145 | 19 | ||||||||||||||||||||
| 100 | 110 | 110.5 | 140 | 122 | 22 | 10 | 200 | 142 | 124 | 18 | 104 | 165 | 8 | ||||||||||||||||||||
| 125 | 140 | 141.6 | 175 | 146 | 235 | 177 | 148 | - | - | 200 | |||||||||||||||||||||||
| 파이프 외경 | 내부 플랜지 | 외부 플랜지 | 스토퍼 | 볼트 홀 | |||||||||||||||||||||||||||||
|---|---|---|---|---|---|---|---|---|---|---|---|---|---|---|---|---|---|---|---|---|---|---|---|---|---|---|---|---|---|---|---|---|---|
| 명목 | 실제 | d0 | D2 | D4 | T | T1 | D | D1 | D3 | t | t1 | d1 | m | C | N | H | |||||||||||||||||
| (ND) | (mm) | (mm) | (mm) | (mm) | (mm) | (mm) | (mm) | (mm) | (mm) | (mm) | (mm) | (mm) | (mm) | (mm) | (mm) | ||||||||||||||||||
| 50 | 55 | 55.4 | 84 | 64 | 20 | 7 | 155 | 86 | 66 | 14 | 8 | 51 | 3 | 120 | 4 | 19 | |||||||||||||||||
| 65 | 70 | 70.4 | 109 | 77 | 175 | 111 | 79 | 66 | 4 | 140 | |||||||||||||||||||||||
| 80 | 85 | 80.4 | 120 | 92 | 8 | 185 | 122 | 94 | 16 | 10 | 80 | 150 | 8 | ||||||||||||||||||||
| 100 | 110 | 110.5 | 140 | 122 | 22 | 10 | 210 | 142 | 124 | 18 | 104 | 175 | |||||||||||||||||||||
| 125 | 140 | 141.6 | 175 | 146 | 250 | 177 | 148 | - | - | 210 | 23 | ||||||||||||||||||||||
JIS H5120 CAC202 (YBSC2)
JIS F7804
| 파이프 외경 | 플랜지 | 스토퍼 | 볼트 | 기타 | |||||||||||||||||||||||
|---|---|---|---|---|---|---|---|---|---|---|---|---|---|---|---|---|---|---|---|---|---|---|---|---|---|---|---|
| d0 | D | a | b | t | T | d1 | m | C | N | H | |||||||||||||||||
| 명목 | 실제 | ||||||||||||||||||||||||||
| (ND) | (mm) | (mm) | (mm) | (mm) | (mm) | (mm) | (mm) | (mm) | (mm) | (mm) | (mm) | (mm) | |||||||||||||||
| 10 | 15 | 15.1 | 75 | 26 | 30 | 9 | 15 | 12.2 | 2.5 | 55 | 4 | 12 | 3 | ||||||||||||||
| 15 | 20 | 202 | 80 | 30 | 34 | 16.8 | 60 | ||||||||||||||||||||
| 20 | 25 | 25.2 | 85 | 37 | 41 | 10 | 16 | 21.4 | 65 | ||||||||||||||||||
| 25 | 30 | 30.3 | 95 | 42 | 46 | 26.8 | 75 | ||||||||||||||||||||
| 32 | 35 | 35.3 | 115 | 50 | 54 | 12 | 18 | 31.8 | 90 | 15 | |||||||||||||||||
| 40 | 45 | 45.3 | 120 | 57 | 61 | 41.0 | 95 | 4 | |||||||||||||||||||
| 파이프 외경 | 플랜지 | 스토퍼 | 볼트 | 기타 | |||||||||||||||||||||||
|---|---|---|---|---|---|---|---|---|---|---|---|---|---|---|---|---|---|---|---|---|---|---|---|---|---|---|---|
| d0 | D | a | b | t | T | d1 | m | C | N | H | |||||||||||||||||
| 명목 | 실제 | ||||||||||||||||||||||||||
| (ND) | (mm) | (mm) | (mm) | (mm) | (mm) | (mm) | (mm) | (mm) | (mm) | (mm) | (mm) | (mm) | |||||||||||||||
| 10 | 15 | 15.1 | 90 | 26 | 30 | 12 | 16 | 12.2 | 2.5 | 65 | 4 | 15 | 3 | ||||||||||||||
| 15 | 20 | 202 | 95 | 30 | 34 | 16.8 | 70 | ||||||||||||||||||||
| 20 | 25 | 25.2 | 100 | 37 | 41 | 14 | 18 | 21.4 | 75 | ||||||||||||||||||
| 25 | 30 | 30.3 | 125 | 42 | 46 | 26.8 | 90 | 19 | |||||||||||||||||||
| 32 | 35 | 35.3 | 135 | 50 | 54 | 16 | 20 | 31.8 | 100 | ||||||||||||||||||
| 40 | 45 | 45.3 | 140 | 57 | 61 | 41.0 | 105 | 4 | |||||||||||||||||||
| Standard | ND | OD | WT | Temper Quality | Length (M) |
|---|---|---|---|---|---|
| (A) | (mm) | (mm) | M | ||
| JIS H3300 C1220 | 4 | 6.00 | 1.2 | O, OL | 6M |
| 5 | 8.00 | 1.2 | O, OL | ||
| 6 | 10.00 | 1.2 | H, 1/2H, O, OL | ||
| 8 | 12.00 | 1.2 | H, 1/2H, O, OL | ||
| 10 | 15.00 | 1.4 | H, 1/2H, O, OL | ||
| 15 | 20.00 | 1.6 | H, 1/2H, O, OL | ||
| 20 | 25.00 | 1.6 | H, 1/2H, O, OL | ||
| 25 | 32.00 | 1.6 | H, 1/2H, O, OL | ||
| 32 | 35.00 | 1.6 | H, 1/2H, O, OL | ||
| 40 | 45.00 | 2.0 | H, 1/2H, O, OL | ||
| 50 | 55.00 | 2.0 | H, 1/2H, O, OL | ||
| 65 | 70.00 | 2.0 | H, 1/2H, O, OL | ||
| 80 | 85.00 | 2.5 | H, 1/2H, O, OL | ||
| 100 | 110.00 | 3.0 | H, 1/2H, O, OL | ||
| 125 | 140.00 | 3.0 | H, 1/2H, O, OL |
| Standard | ND | OD | WT (Type) | Temper Quality | Length | |||
|---|---|---|---|---|---|---|---|---|
| (A) | (Inch) | (mm) | "K" | "L" | "M" | M | ||
| ASTM B88 C1220 | 8 | 1/4 | 9.52 | 0.89 | 0.76 | LWC, S/T | 6M | |
| 10 | 3/8 | 12.7 | 1.24 | 0.89 | 0.64 | LWC, S/T | ||
| 15 | 1/2 | 15.88 | 1.24 | 1.02 | 0.71 | S/T | ||
| 20 | 5/8 | 19.05 | 1.24 | 1.07 | 0.81 | S/T | ||
| 25 | 3/4 | 22.22 | 1.65 | 1.14 | 0.89 | S/T | ||
| 32 | 1 | 28.58 | 1.65 | 1.27 | 1.07 | S/T | ||
| 40 | 1 1/4 | 34.92 | 1.65 | 1.45 | 1.24 | S/T | ||
| 50 | 1 1/2 | 41.28 | 1.83 | 1.52 | 1.47 | S/T | ||
| 65 | 2 | 53.98 | 2.11 | 1.78 | 1.65 | S/T | ||
| 80 | 2 1/2 | 66.68 | 2.41 | 2.03 | 1.91 | S/T | ||
| 90 | 3 | 79.38 | 2.76 | 2.29 | 2.11 | S/T | ||
| 100 | 3 1/2 | 92.08 | 3.05 | 2.54 | 2.41 | S/T | ||
| 125 | 4 | 104.78 | 4.06 | 2.79 | 2.77 | S/T | ||
| 150 | 5 | 130.18 | 4.87 | 3.17 | 3.10 | S/T | ||
| 200 | 6 | 155.58 | 6.88 | 3.56 | 4.32 | S/T | ||